Casa Solares

Una casa que mira hacia adentro
Casa Solares se ubica en una de las primeras urbanizaciones cerradas con criterios y políticas sustentables en Santiago del Estero, Solares Eco Pueblo. Proyectada para una pareja de profesionales que busca en su vivienda un lugar para desconectarse, relajarse y poder compartir con amigos.
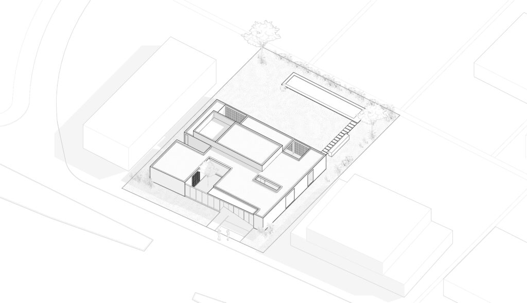
Se plantea una casa que mira hacia adentro y construye su propio microclima de intimidad. Se proyecta una envolvente simple, modulada, la cual genera una situación de introversión.
El proyecto nace de los arboles existentes, incorporándolos a cada uno de sus espacios mediante patios, haciéndolos participes de la vivencia interior de la casa. Estos permiten mejorar las condiciones de luz natural, ventilación y contacto con la naturaleza sin comprometer la privacidad.
El contacto con el exterior se regula mediante filtros metálicos, que permiten controlar el asoleamiento y la privacidad.
El programa hace énfasis en los espacios sociales, potenciando la reunión y el encuentro. Se construyen secuencias espaciales de recorrido que posibilitan la adaptación a diversos usos y actividades.
Una materialidad austera, revoques blancos, maderas naturales, solados cementicios continuos y filtros metálicos blancos, generan una atmosfera en donde el acento está puesto en la luz natural, la textura de las sombras y la vegetación.
Una casa puertas adentro, silenciosa.

Nombre del proyecto: Casa Solares
Ubicación : Santiago del Estero, Argentina

Oficina de Arquitectura: Sitio Arquitectura
Arquitectos: Augusto Montes de Oca – Carlos Zelarayan
Equipo de trabajo: Josefina Viaña
Año:2021

Fotografía: Josefina Viaña