Solar de Roca

Solar de Roca es un complejo de casas ubicado en un barrio cerrado en Barrio Viajante. Calles tranquilas con muchos árboles y construcciones de ladrillo visto que prevalecen en el tiempo son elementos constituyentes de su identidad.

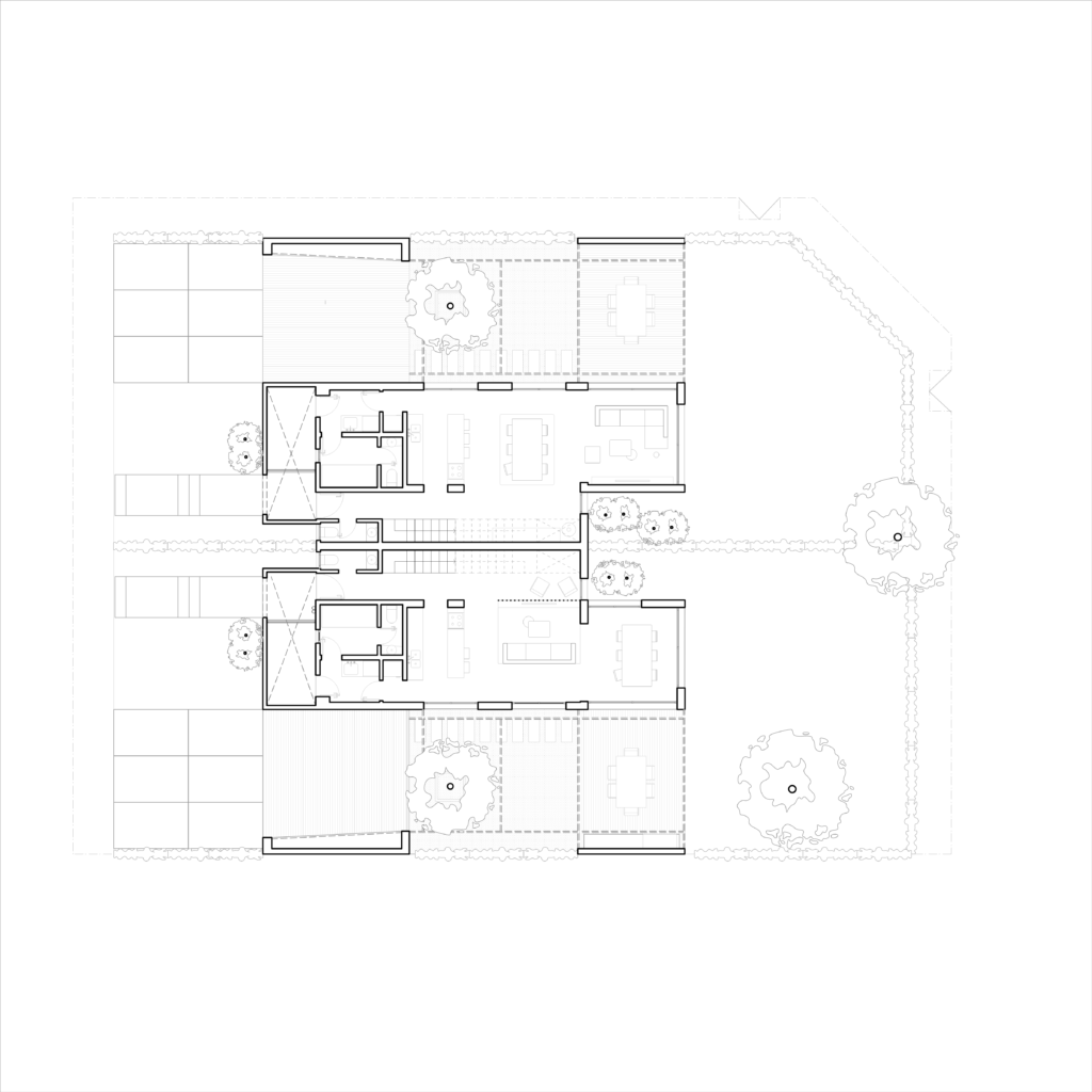
Agrupadas de a pares, cada vivienda tiene un retiro de frente y un retiro lateral como desborde privado, con una materialidad que remite al entorno inmediato. La sustracción opera en dos escalas: la urbana y la arquitectónica.

Respecto de la primera, esboza una relación de llenos y vacíos sucesivos y de la segunda, condiciondando su recorrido.

A su vez, la fachada perforada opera como elemento articulador entre el espacio urbano del barrio y el sistema de vivienda unifamiliar. En la planta alta, ese patio está contenido por un muro cribado, el cual acentúa su carácter de filtro para la vivienda.

Virtualmente, perceptualmente y espacialmente; el entre pasa a ser la fuga con la que manejamos los límites desde la vivencia interior. Así, constituye una separación del entorno, por un lado; y una transición, por el otro, implicando tiempo
y recorrido.

Nombre del proyecto: Casa Solar de Roca
Ubicación : Tucumán, Argentina

Oficina de Arquitectura: Sitio Arquitectura
Arquitectos: Augusto Montes de Oca – Carlos Zelarayán
Equipo de trabajo: Clemencia Juárez Araoz – Cristian Martínez
Año: 2023

Fotografía: Carlos Bazán – Catalina Sfer Salas