Duplex Verraterra

2 viviendas en PH
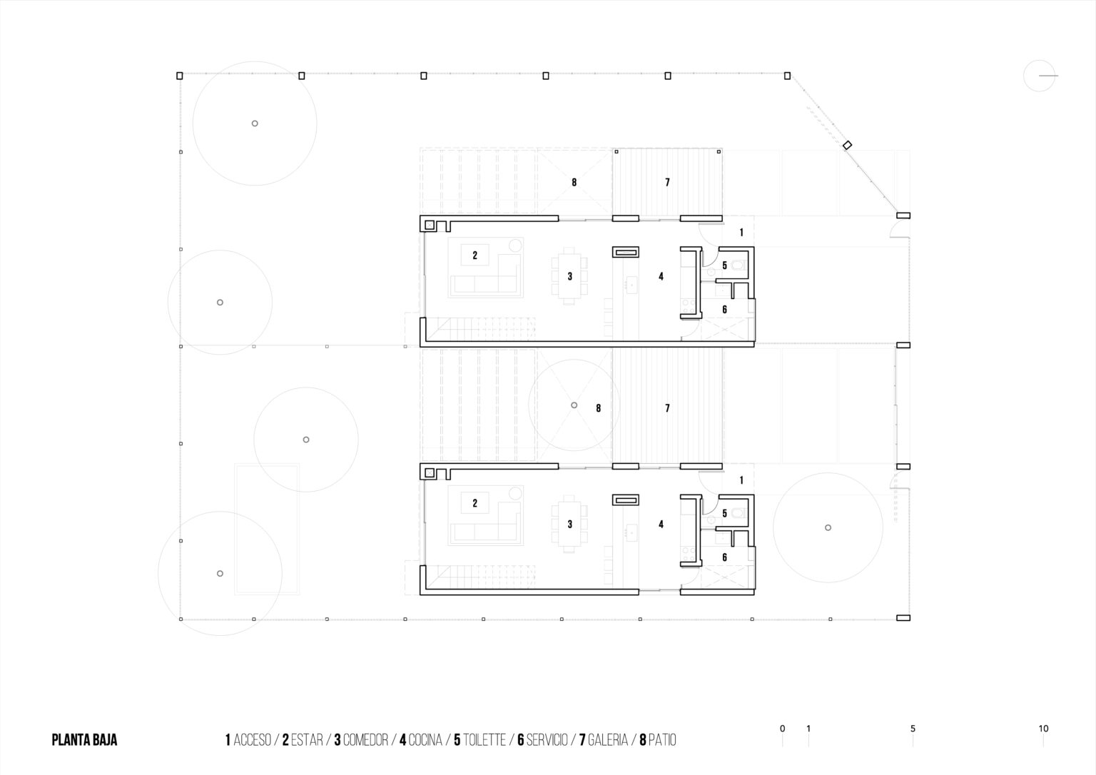
El encargo fue el desarrollo de 2 viviendas para renta, en un lote esquina en un área de expansión Urbana de la ciudad de Yerba Buena.
La naturaleza del encargo imponía tener consideraciones respecto a la eficiencia tanto en el uso del lote como de la construcción.
Se propuso un sistema de 2 piezas idénticas que se articulan y se adaptan a su condición particular.
Se adopta una lógica de lleno (vivienda) y vacío (expansión). Esto permitió desarrollar una planta compacta con áreas sociales y de servicio en planta baja y áreas privadas en planta alta.
Las áreas de expansión laterales al volumen construido se adaptan a diversos usos, cochera/galería, patio, pérgola, jardín lateral. Esto permiten incorporar los espacios exteriores a la vivencia interior de la casa.
Un basamento metálico color terracota unifica la intervención, texturas metálicas lisas y permeables se contraponen al hormigón visto y revoques texturados de los volúmenes de planta alta.

Nombre del proyecto: Duplex Veraterra
Ubicación : Tucumán, Argentina

Oficina de Arquitectura: Sitio Arquitectura
Arquitectos: Augusto Montes de Oca – Carlos Zelarayan
Asociado: Paulo Vera


Año: 2022

Construcción: Rodolfo Sanchez Construcciones

Fotograía: Josefina Viaña