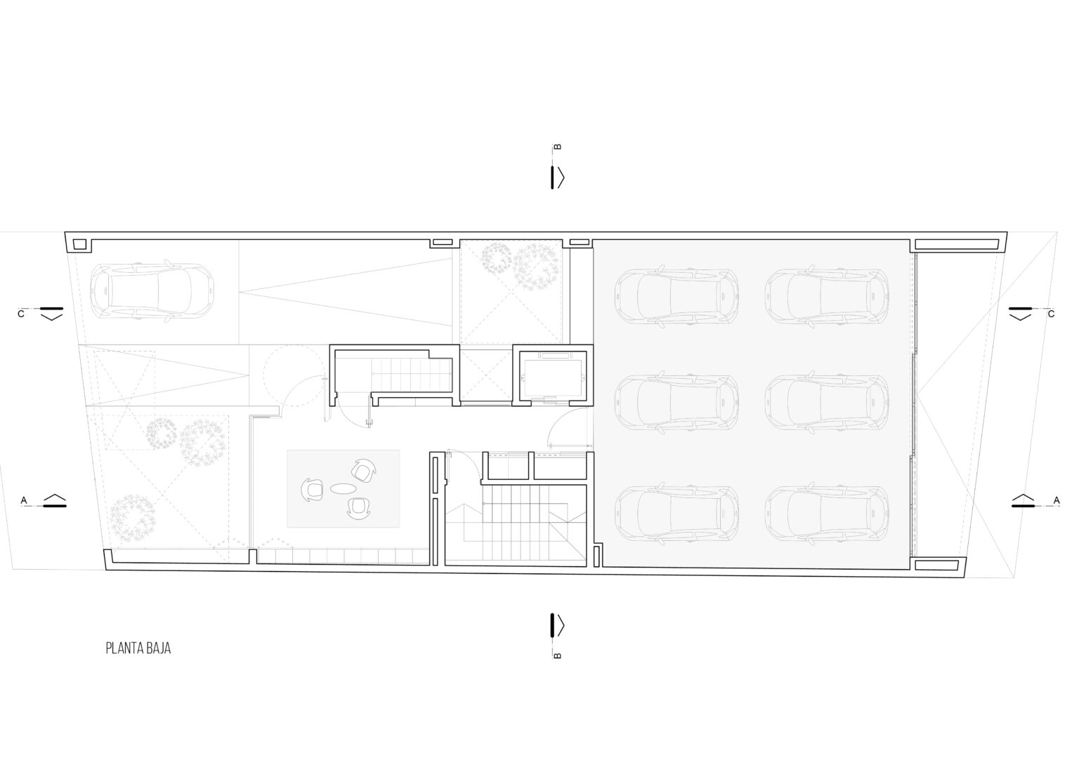
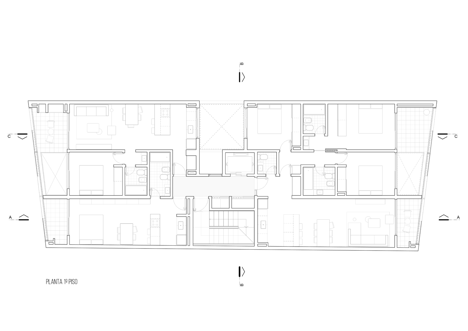
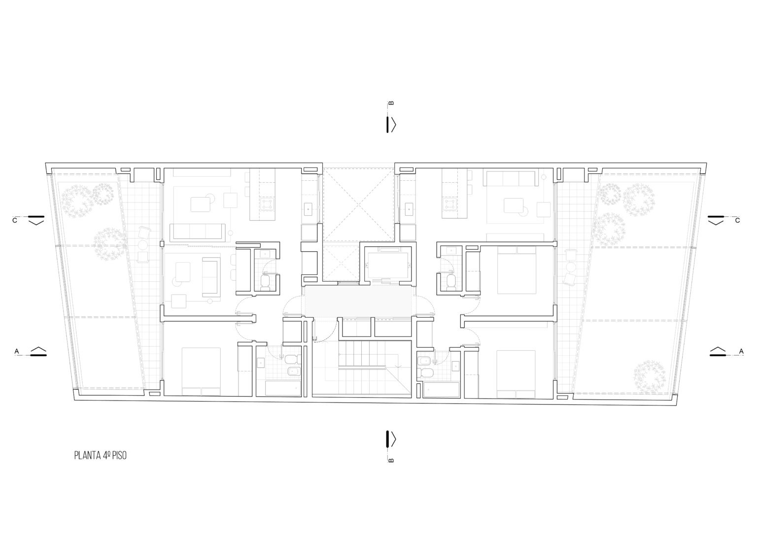
Torre Jardín

Nombre del proyecto: Torre Jardín
Ubicación : Santiago del Estero, Argentina

Oficina de Arquitectura: Sitio Arquitectura
Arquitectos: Augusto Montes de Oca – Carlos Zelarayán
Asociado: Paulo Vera
Equipo de trabajo: Julieta Morales
Año: 2023

Visualización: Micaela Carrazana