Casa San Pablo

Una vivienda unifamiliar en un country al pie del cerro San Javier.
El proyecto gira en torno a la condición paisajística que ofrece la locación y a la necesidad de responder al estilo de vida de los usuarios.
La oportunidad del paisaje. Un terreno de proporciones longitudinales con fondo al campo de Golf y el cerro San Javier como telón de fondo.
La casa se sitúa de manera estratégica en relación al paisaje y la topografía. Una pieza longitudinal se recuesta al Sur del lote y se abre al Norte, buscando una conexión con el verde, mediante un espacio de transición semicubierto que protege y contiene.
Esta es contrapuesta por una pieza transversal que se cierra hacia los laterales y se abre buscando conectarse directamente con las visuales del frente y el contrafrente.

La pendiente que ofrece el terreno se aprovecha para organizar el programa en 3 niveles.
En el nivel inferir se resuelve el acceso vehicular, áreas de esparcimiento y servicio. La planta baja aloja el programa social, representativo. Espacios continuos, en contacto con el exterior, organizados bajo una cubierta que los protege, propician la reunión social, el encuentro y el disfrute al aire libre.
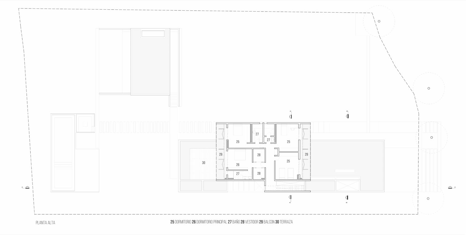
En la planta alta se ubica el área privada con 4 dormitorios, cada uno de ellos con un área de desborde exterior.

La intimidad y protección se resuelve mediante una piel móvil de madera, que otorga flexibilidad y la posibilidad de adaptarse a los diferentes momentos y usos.

Una pieza sobria, de líneas simples, se inserta en el paisaje de manera respetuosa, se apoya sutilmente y se mantiene casi suspendida buscando causar el menor impacto posible.

Nombre del proyecto: Casa San Pablo
Ubicación : Tucumán, Argentina

Oficina de Arquitectura: Sitio Arquitectura
Arquitectos: Augusto Montes de Oca – Carlos Zelarayán
Equipo de trabajo: Josefina Viaña – Yael Baschkier – Juan Ingalina

Año: 2024 

Construcción: Rodolfo Sanchez Construcciones
Diseño de interior: BNZ arquitectura y diseño
Cálculo estructural: Vas Ingeniería – Raul Benito y asociados
Paisajismo: Sonia Paz Jardines
Riego: Royal Gardens Riego Tucumán
Climatización: Eco consumo

Fotografía: Imaginario Foto
Video: Irina Parolo